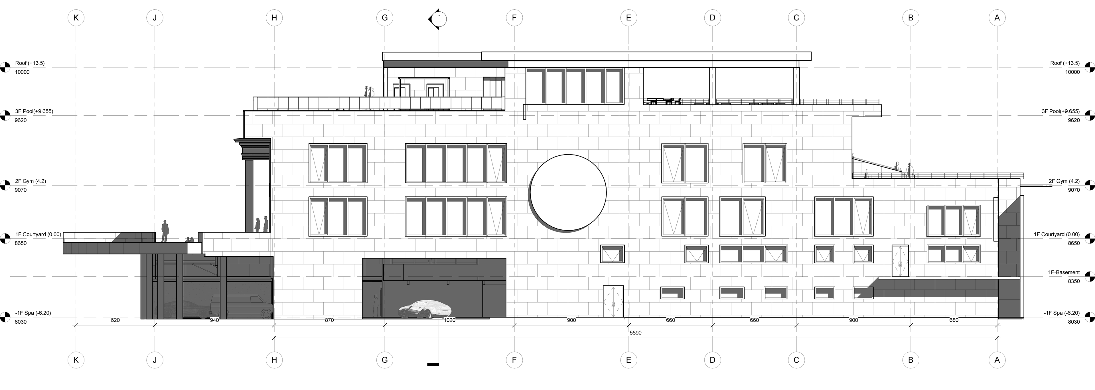
XIHAILOONG RESORT and SPA, JIUJIANG, CHINA
Back to Top